• 咨询热线:138-3214-7329 189-0339-0754 欢迎进入车载DCDC转换器、军用ups电源、模块电源厂家石家庄PA直营电子科技有限公司官网!

    标准模块电源(DC-DC转换器、AC-DC转换器)

    新能源电动汽车DC-DC模块电源集成、制造商

    PA直营Contact us
    全国咨询热线138-3214-7329

    石家庄PA直营电子科技有限公司

    公司地址:河北.石家庄市长安区丰收路188号

    联系电话:189-0339-0754

    公司邮箱:zhuoxuankj@126.com

    AC/DC电源模块

    AC-DC电源模块75W-150W

    功  率:75-150W

    输入电压:165~265VAC 200~375VDC

    输出电压:5/12/15V/24V/28V/48V/110VDC

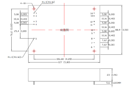
    封装尺寸:127*88.9*25mm

    高效率、高可靠性、小体积

    六面金属屏蔽封装

    宽电压输入范围

    此产品系列具有全球通用输入电压范围、交直流两用、高可靠性、高效率、低功耗、安全隔离、抗干扰能力强等特点,尤其在电磁兼容方面表现优越,浪涌按照 IEC61000 标准达到LEVEL 4,符合电力行业产品设计要求,低纹波噪声,高功率密度,输出短路、过流等多重保护功能。在通信、电力、铁路、工业控制、新能源等行业广泛应用。


    在线咨询全国热线
    189-0339-0754

    典型性能:宽压输入、三路隔离输出,输出低纹波噪声、高稳压精度、长期短路保护自恢复、使用效率高,高隔离耐压、输入过流保护、过压保护、便携安装
    广泛应用:工业自动化、通信、医疗、车载设备、新能源、铁路信号、仪器仪表、电力系统、军用设备、车船舰载、雷达、航空航天等领域

    电参数测试环境:所有参数均在标称输入电压,标称负载、环境温度25℃下测得,特殊除外
    产品命名方式:
                  
     
    产品型号列表:
    产品型号输入电压范(AC)输出电压(VO)/输出电流(IO)纹波噪声效率(%)
     





    85-265V(AC)
    200-375V(DC)
    Vo1Io1Vo2Io2Vo3Io3  
    ZAS120V-220S0505V24A    <%185
    ZAS120V-220S1212V10A    <%188
    ZAS120V-220S1515V8A    <%188
    ZAS120V-220S2424V5A    <%190
    ZAS120V-220S4848V2.5A    <%190
    ZAS120V-220S0909V13.3A    <%182
    ZAS120V-220S3.33.3V24A    <%181
    ZAS120V-220D12+12V5A-12V5A  <%189
    ZAS120V-220D24+24V2.5A-24V2.5A  <%188
    ZAS120V-220D15+15V4A-15V4A  <%187
    ZAS120V-220D48+48V1.25A-48V1.25A  <%190
    注:以上型号未尽,有更多参数可选,详情咨询我公司。
    输入特性低端(Vac)标称输入电压(Vac)高端(Vac)
    输入电压85VAC220VAC265VAC
    输入频率范围47Hz-440Hz
    输出特性
    输出电压精度Vo1±1%,Vo2±3%,Vo3±3%
    纹波噪声<1%Vp-p(20MHz示波器光探头测试)
    负载效应±0.5%(10%-)
    过流保护>110%
    温度系数±0.03%/℃
    输出保护短路保护(长期、自恢复)、过温保护、过流保护、过压保护
    一般特性
    工作环境温度-25~+60℃(工业级)  -40~+70℃(军工级)  -55~+85℃(航天级)
    储存温度-45~+105℃(工业级) -55~+105℃(军工级)  -60~+125℃(航天级)
    储存湿度5%~95%RH
    隔离电阻>100M
    隔离耐压输入-输出2500VAC   输入-外壳2500VAC   输出-外壳500VAC
    工作频率200KHz
    安装方式焊接式
    外壳材料金属外壳
    冷却方式自然空冷
    安装尺寸(单位:mm)及管脚定义:



                 

    本文标签:
    在线客服
    联系方式

    热线电话

    138-3214-7329

    上班时间

    周一到周五

    公司电话

    189-0339-0754

    二维码
    线
    PA直营
    网站地图